384 & 386 Main North Road, Blair Athol
Corner Site and Main street exposure- Prime Commercial Opportunity on Main North Road
384 and 386 each property at $1,500,000 to $1,650,000.
384 corner and 386 are positioned next to each other, they are both in a very good condition with a future potential for further development STCC, buy as single or both. Property 384 will be sold plus GST. Contact agent for Private viewing 0422 322 550.
384 Main North Road:
Corner Site - Prime Commercial Opportunity on Main North Road
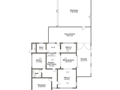
Positioned prominently on the corner of Main North Road, this versatile property offers exceptional exposure, flexible spaces, and a wealth of features tailored for business success. With a combined land area of approximately 1420sqm across two certificates of title (384 and 386 Main North Road), this site is a rare find in the heart of Blair Athol.
Step inside through the welcoming front entry porch and hallway to discover seven well-proportioned rooms, including multiple offices, a reception area, and a spacious boardroom complete with built-in cupboards. The property is enhanced by three bathrooms, four toilets, and two kitchens, one centrally located and another within a portable 20ft (approx.) storage container fitted with its own kitchen and air conditioning.
Highlights include:
- 7 Rooms including Office rooms, Reception, Board room with Built-in cupboards and more!
- 3 Bathrooms and 4 Toilets
- 2 Kitchens Including central kitchen and 2nd kitchen in the portable Storage
- Store room
- 1 portable 20ft (approx.) storage container with kitchen and AC
- Side entry from side road with sliding gate
- Corner property
- Alfresco
- 6x reverse cycle aircons
- Floorboards in main areas
- Front yard
- 3m ceilings (approx.)
- ~720 sqm of land (approx.)
- Combined land area of 1420sqm (approx.) across two certificates of title (384 and 386 Main North Rd)
- Carport for 4 cars (approx.)
- Solar 6kw (approx.)
- Roller shutters
This property is designed to accommodate a wide range of commercial uses, from professional offices to consulting spaces, with ample storage and functional amenities. The corner positioning maximizes exposure, while the dual-title landholding provides future potential for expansion or redevelopment (STCC).
Investors, we can assist with commercial property lease management!
386 Main North Road:
Versatile Commercial Premises with Dual Workshop Access Renovated & Ready
Strategically located on bustling Main North Road, this recently renovated commercial property offers a rare blend of functionality, flexibility, and high visibility. With generous internal and external zones totaling approximately 700sqm (approx.), this site is ideal for businesses seeking a dynamic base with room to grow.
Step into a well-appointed layout featuring six internal rooms, including a welcoming reception, multiple offices, a dedicated meeting room, and a central kitchen. The property also includes one bathroom and two toilets, with an external toilet for added convenience.
Highlights Include:
- 6 Rooms including a Reception, Office Rooms, Meeting rooms and More!
- Central Kitchen
- 1 Bathroom and 2 Toilets including external Toilet
- Spacious Pergola
- Store Room
- 2 Workshops with roller doors
- Spacious Covered Area between main building and Workshop
- Storage attached to Workshop
- Recently Renovated
- Ducted reverse cycle cooling
- Solar-16kw with 10kw battery (approx.)
- Security Shutters
- 6-10 car parking spaces (approx.)
- 3m ceilings (approx.)
- Security system by SA security house
- ~700 sqm (approx.)
Whether you are expanding your business footprint or launching a new venture, these properties offer the infrastructure, zoning, and location to support your success STCC. With excellent street frontage, it's a standout opportunity in Blair Athol's thriving business corridor.
Contact:
Roshiba Christina de la Ruwiere
Licensed Real Estate Agent
Property Sales I Property Management
Phone: 0422 322 550/0410007788
Email: [email protected]
RLA: 263916 / 300599
www.edenestates.com.au
Disclaimer: We have obtained all information in this document through sources deemed reliable. While every endeavour has been made to verify the accuracy of the details in this publication, we cannot guarantee its accuracy, and no warranty or representation is given or made as to the correctness of the information supplied. Neither the owners nor their agents can accept responsibility for errors or omissions. Prospective purchasers are advised to carry out their own investigations. All inclusions and exclusions must be confirmed in the Contract of Sale. Eden Property Sales and Management reserves the right to amend or alter information and content when applicable at any given time, including to ameliorate any corrections.
Mortgage Calculator
$3,078
Estimated monthly repayments based on advertised price of $1500000.
Property Price
Deposit
Loan Amount
Interest Rate (p.a)
Loan Terms
